Welcome to Hatch Detailing
Where Vision Meets Precision
-Our Values-
At Hatch Detailing, we provide professional CAD services in the UK, specialising in 2D and 3D modelling for the engineering, construction, and manufacturing sectors. We use AutoCAD, Advance Steel, and SolidWorks to produce our models and drawings for our clients.
Pride
We pride ourselves on delivering an exceptional customer service, from start to finish your journey with us will be smooth, efficient and easy.
Care
Our company genuinely cares about the work we do and the impact it has. We take pride in delivering quality results, paying close attention to detail, and making sure every project reflects our values and standards. For us, it’s not just about completing tasks—it’s about doing them well.
1.
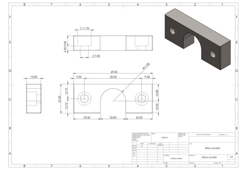
Reverse Engineering
We offer professional reverse engineering services in the UK, converting physical parts into accurate 3D CAD models and technical drawings.

2.
CAD Services
CAD modelling is a transformative process that turns your ideas into precise digital representations. Our CAD Modelling service specializes in creating detailed 2D and 3D models tailored to your specific project requirements.

4.
Steel Detailing
Steel detailing is a crucial aspect of construction that involves creating precise drawings and specifications for steel structures. Our Steel Detailing service delivers accurate and comprehensive plans that ensure the successful fabrication and assembly of steel components.

Get in touch
Telephone: +447397527678
E-mail: darren@hatchdetailing.co.uk
Address: Church Path 5C, Sandy, SG19 1ET, United Kingdom

